Dal culto di Ottaviano all'apoteosi di Augusto

Eugenio La Rocca (2010)


Fonte: Dicere laudes. Elogio, comunicazione, creazione del consenso. Atti del convegno internazionale Cividale del Friuli, 23-25 settembre 2010, Edizioni ETS, Pisa 2011, pp.179-204.

Riprodotto per ragioni di studio (learning purposes).


Ottaviano/Augusto, come i suoi successori, aveva ben chiaro quale fosse il destino di tutti i mortali, ma sapeva altrettanto bene che, una volta rinsaldato il suo potere effettivo, prima con la non facile vittoria nel 36 a.C. su Sesto Pompeo a Naulochos e in seguito, nel 31 a.C., su Marco Antonio ad Azio, per i suoi incommensurabili benefici al mondo intero, avrebbe potuto ottenere onori isotheoi nel mondo ellenizzato e una consecratio ufficiale dopo la morte a Roma stessa, seguendo una tradizione non priva di modelli esemplari, come potevano testimoniare i casi di Romolo/Quirino e Cesare. Era solo questione di tempo e di modi. Dopo Naulochos, quando era divenuto, secondo un epigramma di Cornelio Gallo, “maxima Romanae pars historiae”, Ottaviano si presentò ufficialmente in senato e davanti al popolo romano come colui che aveva definitivamente debellato le guerre civili, e come il campione della pace.

Sulla base della statua dorata eretta in suo onore nel foro era scritto: “Ha restaurato la pace, per molto tempo turbata dalle discordie, per terra e per mare”. La pace, e l’abbondanza che scaturisce dalla pace, sarebbero divenuti i suoi slogan prediletti. Aveva 28 anni, e le città italiche, come ricorda Appiano, lo venerarono insieme con i loro dei: probabilmente, se bene si intende il testo, non da solo, ma associato al culto di altre divinità, cioè come synnaos o symbomos. È l’immagine del pacator orbis che ormai possiamo vedere nel tiberiano rilievo dal Sebasteion di Afrodisia (fig. 1).

A seguito della vittoria su Marco Antonio e Cleopatra ad Azio, il senato stabilì che si svolgessero feste in suo onore ogni quattro anni e cerimonie di ringraziamento agli dei il giorno del suo genetliaco e nell’anniversario dell’annuncio della vittoria navale, che i senatori e le vestali e tutti i cittadini gli andassero incontro in occasione dei suoi futuri ingressi in città, che avesse il diritto alla proedria, che gli fossero erette statue e che si celebrassero supplicationes in suo onore. A seguito della conquista di Alessandria, fu decretato che quel giorno fosse considerato fausto, che ad Ottaviano fosse assegnato il diritto di essere tribuno a vita, di salvare chiunque avesse invocato il suo aiuto dentro il pomerio e fuori Roma per una distanza di sette stadi e mezzo, di giudicare nei processi di appello, con un voto determinante come quello di Athena nel processo di Oreste davanti all’Areopago. Si decretò inoltre che i sacerdoti e le sacerdotesse pregassero anche in suo favore durante le supplicationes per il popolo e il senato, e che nei banchetti, sia pubblici che privati, fosse celebrato con libagioni. Poco dopo, al sopraggiungere delle informazioni sui felici eventi partici (Fraate, in lotta con Tiridate, e bisognoso della non belligeranza dei Romani per non aprire un nuovo fronte di guerra, aveva inviato come ostaggio un suo figlio a Ottaviano), il senato decise che il suo nome fosse aggiunto negli inni sacri a quello degli dei (sappiamo ad esempio che il suo nome fu inserito nel carmen Saliare), che una tribù si chiamasse Iulia, che Ottaviano cingesse in tutte le feste la corona trionfale, che i senatori lo seguissero nel trionfo con le toghe purpuree, che il popolo facesse festa con sacrifici il giorno del suo ingresso a Roma, ritenuto sacro, che potesse eleggere sacerdoti in numero superiore a quello tradizionale, che finalmente si chiudesse il tempio di Giano.

Il potere politico di Ottaviano non aveva più eguali. In quanto decreti del senato, queste onorificenze valevano per Roma, anche se ebbero forti ripercussioni in tutto l’impero. Esse non creavano ufficialmente un nuovo dio nel firmamento olimpico, ma indubbiamente costituivano la premessa essenziale per una futura divinizzazione, e comunque spianavano la strada per determinate forme di omaggio al principe vivente che rasentavano talora il culto statale. Tale doveva essere l’inserimento del suo nome nel carmen Saliare, cantato dai Salii durante il trasporto degli ancilia e destinato alla preservazione ed all’eternità dello stato romano. Probabilmente l’imperatore non vi era impetrato alla pari delle divinità olimpiche: lo si pregava in qualità di garante della salvaguardia e della protezione dello stato, come documentato per i periodi seguenti dagli acta fratrum Arvalium. In essi si parla di vota annuali e di sacrifici del collegio in occasione dei compleanni degli imperatori o di membri della famiglia imperiale, per la loro accessione al trono, per la loro morte ed eventuale divinizzazione, nonché per la loro salus (a seguito di una cospirazione opportunamente sventata, o in occasione del loro felice rientro in città da viaggi o da campagne militari). In questi casi non si effettuavano mai sacrifici agli imperatori viventi, bensì di solito a Giove, Giunone e Minerva, alla Salus publica, ai membri divinizzati della famiglia imperiale, inoltre al genius dell’imperatore vivente e alla iuno dell’imperatrice, dinanzi al tempio di Giove Capitolino, di Marte Ultore, del divo Augusto. Allo stesso modo, le libazioni, effettuate durante i banchetti pubblici, potevano certamente essere destinate ad impetrare Ottaviano come un dio, ma potevano essere anche celebrate a favore di Ottaviano e della sua salus.

La medesima ambiguità, anzi accentuata, emerge nel culto privato. È nel comune sentire degli uomini credere nell’essenza superumana di coloro che li beneficano hic et nunc: e poco importa se la convinzione poggi o meno su basi religiose sicure e accettate da tutti. In Grecia il fenomeno era ormai attestato da lungo tempo, e il culto di personaggi viventi si presenta come un’espressione spontanea di gratitudine per i favori ricevuti. Secondo un inno dedicato a Demetrio Poliorcete di ritorno ad Atene da un viaggio a Leucade ed a Corcira, il principe appare agli Ateniesi, desiderosi di ricevere un salvatore, come una divina epifania. Egli è il solo vero dio: “Egli, come conviene a un dio, è qui in allegria, bello e sorridente. Mostra alcunché di semnos [il termine in seguito adottato per tradurre in greco augustus] … O figlio del più possente dio Poseidon e di Afrodite, salve. Gli altri dei sono lontani o non ascoltano, o non ci sono, o non ci danno retta; ma tu sei visibile in carne ed ossa, non in legno e non in pietra, ma in verità. Perché tu hai il potere…”.

Ottaviano/Augusto riuscì ad ottenere qualcosa di simile: uno spontaneo omaggio ammantato di religiosità da parte della popolazione dell’impero in cambio di tutti i benefici ottenuti con il ripristino di una pace duratura. Il suo culto che, stante l’attestazione di Appiano, e contrariamente a quanto si suppone di solito, si affermò rapidamente in Italia e nelle province, libere di celebrare lui, e in seguito i membri della sua famiglia secondo il loro gradimento, sarebbe divenuto un fondamentale collante dell’impero: si pregava l’imperatore o sull’imperatore si giurava, e sotto il suo sguardo vigile si svolgevano le transazioni commerciali ed i processi. Non meraviglia che, come afferma Appiano, ben prima che il divus Augustus fosse inserito, dal 14 d.C., nel novero delle divinità olimpiche, il culto dell’imperatore, associato a quello di altre divinità olimpiche o personificazioni come la dea Roma o il genio del senato, oppure, come si vedrà, l’omaggio offerto direttamente al suo genius o al suo numen, fossero già ampiamente diffusi. Evitando probabilmente di offendere città amiche con un rifiuto rispetto ai costumi locali, il principe permise ai Greci di procedere al culto nel ruolo meno impegnativo e già da lungo tempo adottato per i sovrani greci, di associato al culto. Ciò è avvenuto ad esempio a Olimpia, dove Augusto fu venerato nel Metroon come synnaos di Cibele, a partire dagli anni immediatamente posteriori al 27 a.C. La scelta di questo tempio, dedicato alla dea che simbolicamente commemorava le origini troiane di Roma, è sintomatica. Il principe, secondo uno schema iconografico già adottato dai sovrani greci – è documentato il caso di di un Attalide, forse Attalo I, synnaos di Hera nel tempio dedicato alla dea a Pergamo – è raffigurato come Zeus stante (fig. 2), non solo in riferimento al dio di Olimpia, ma anche secondo il comune raffronto tra il padre degli dei (e sovrano indiscusso dell’Olimpo) e il reggitore assoluto dell’impero romano.

Anche in Italia non mancavano forme di culto, già in età precoce. Templi al principe ancora vivente sono documentati ancor prima del 15 a.C. a Terracina e a Pola (dove Augusto è associato alla dea Roma); a Benevento è testimoniato un Cesareo. Al 10 a.C. è databile il primo tempio del culto imperiale a Narona, in Croazia, mentre anteriore al 2 a.C. è l’Augusteo di Pisa. Di datazione ancora discussa, ma comunque precedente alla sua morte, è il tempio destinato al suo genio a Pompei. È probabile, inoltre, che su uno dei lati lunghi della basilica di Lucus Feroniae fosse inserito un sacello dedicato ad Ottaviano (fig. 3) già in un periodo compreso tra il 36 e il 27 a.C. La struttura architettonica dell’edificio è coerente con questa datazione, ma parla a favore anche il ritrovamento nell’ambiente di una testa di Ottaviano (fig. 4) secondo uno schema iconografico anteriore a quello del più noto e diffuso tipo già detto “Azio”, ed ora detto “La Alcudia” (per non vincolare la nascita di codesto tipo ritrattistico alla battaglia del 31 a.C.). C’è infine l’informazione di Svetonio che, durante il trasporto della salma di Augusto da Nola a Roma, il feretro fu deposto ad ogni tappa nella basilica o nel tempio principale della città. Potrebbe non avere torto Saliou quando suppone che codeste basiliche contenessero uno spazio dedicato al culto dell’imperatore, sia pure entro i limiti cui si è già accennato.

A Roma, adeguatasi rapidamente, almeno nei più importanti testi letterari, a queste forme apologetiche che individuavano nel benefattore dell’umanità un emissario degli dei, o dio egli stesso, sembrava impossibile, al contrario, procedere ad un culto ufficiale controllato dallo stato, con riti e sacerdozi specifici, per l’innata ritrosia di un senato che non vedeva di buon occhio il predominio continuativo e duraturo di un magistrato sull’intera classe dirigente, se non in determinate occasioni sapientemente vincolate. Eppure, i versi dei poeti, alcune emissioni monetali e gemme in pietra dura o semipreziosa, specialmente del periodo compreso tra la vittoria di Naulochos e la vittoria di Azio – ma in determinati casi anche in seguito – dichiarano, almeno in apparenza, una posizione meno moderata. È chiaro che in poesia l’assimilazione del principe a un dio ricalca formulazioni retoriche che avevano i loro precedenti nell’ambiente delle corti greco-ellenistiche. In quanto produzioni a carattere non peculiarmente statale e rientranti in un genere specifico di ormai lunga tradizione, le apologie poetiche non sono affatto un documento ufficiale dell’epoca, ma rispecchiano, piuttosto, quello che poteva essere il sentire comune del popolo nei confronti del loro benefattore, secondo l’opinione che la “tangibilità” di benefici ottenuti rapidamente in vita per merito di un principe può valere talvolta assai di più della sostanziale “indifferenza con la quale gli dei guardano tanto alle buone, quanto alle cattive azioni”, secondo un’amara constatazione di Tacito. Anche le gemme e i cammei rientrano in una produzione che non può definirsi strettamente “ufficiale” e/o “pubblica”, in quanto destinata ad un ambiente colto, che sapeva leggere con il dovuto distacco i modi di assimilazione simbolica tra principi e dei secondo una ormai usuale prassi di tradizione greca. Ben differente è il caso delle rappresentazioni sulle emissioni monetali che, al contrario, possono essere considerate uno dei più efficaci mezzi di comunicazione tra i potenti e il popolo. In virtù di un'oculata scelta dei programmi figurativi, le monete in ambiente occidentale possono talvolta alludere a valenze superumane del principe, specialmente durante i momenti cruciali della lotta tra più pretendenti al potere, ma quasi mai con avventata ostentazione, e comunque con scelte iconografiche che evitano di scompaginare apertamente il sistema repubblicano. Sono pochissimi, ma significativi, gli esempi nei quali i magistrati romani sono rappresentati in veste o attributi divini, e tra essi solo alcuni denari coniati da Ottaviano prima del 27 a.C. appaiono per certi aspetti “eversivi”, al punto che il principe si guardò bene dal proseguire lungo questa strada, abbandonandola definitivamente dopo l’acquisizione del cognomen Augustus, a favore di schemi iconografici più in linea con la tradizione repubblicana. In un denario coniato probabilmente tra la battaglia di Naulochos e quella di Azio, Ottaviano compare eretto, in nudità eroica, con scettro, con un attributo caratteristico di Nettuno, l’aplustre, e con un piede poggiato sul globo celeste, simbolo del dominio sul mondo (fig. 5). È forse una rivalsa nei confronti di Sesto Pompeo che si era atteggiato a novello Nettuno, indossando un mantello blu e facendo coniare denari nei quali il padre, Pompeo Magno, era rappresentato in posizione reclinata, con aplustre e piede poggiato sulla prua di una nave, secondo una celebre formula iconografica già adottata per il dio delle acque (fig. 6). Ma Pompeo era morto da tempo, e la sua immagine sulle monete vale come formula di eroizzazione post mortem, mentre Ottaviano era vivo e vegeto! Ancora più drastica è la soluzione adottata in un’altra emissione a ritmo binato, nella quale, cioè, le rappresentazioni sulle due facce di due monete si relazionano a schema incrociato. Sul verso del primo denario è raffigurata un’erma nella quale si riconosce di solito il dio Terminus giovanile, con una corona d’alloro sul capo e con un fascio di fulmini giacente ai piedi del pilastrino (fig. 7). Ad essa corrisponde sul recto del secondo denario il busto-erma di Ottaviano con corona di alloro sul capo e fascio di fulmini alle spalle (fig. 8). Non c’è alcun dubbio che il rapporto tra le immagini vuol suggerire l’assimilazione di Terminus con Ottaviano, secondo una tipologia non priva di agganci iconografici e ideologici anche con Hermes/Mercurio, una delle divinità predilette dal principe, evidentemente in relazione alla sua funzione di messaggero di Giove, come si desume dalla celebre Ode I 2 di Orazio.

In modo più ostentato, come conviene a tale produzione, alcuni magnifici cammei mostrano Ottaviano/Augusto assimilato alle principali divinità olimpiche. In una sardonica a Vienna, databile poco dopo il gennaio del 27 a.C., è come Nettuno dominatore dei mari, trionfatore, in toga, su un carro tirato da quattro tritoni, due dei quali reggono suoi attributi specifici: uno il clipeus virtutis entro la corona civica su un supporto composto da un globo celeste e da due capricorni, l’altro una vittoria su globo (fig. 9). In una sardonica a Boston, forse più antica, è di nuovo simile a Nettuno: il suo carro marino travolge il corpo di un personaggio maschile, Sesto Pompeo oppure, se la gemma è più tarda di qualche anno, Marco Antonio (fig. 10). Assimilato ad Hermes/Mercurio, come indica la presenza del caduceo in primo piano, davanti al volto di profilo, Ottaviano compare nella celeberrima sardonica già Marlborough, poi Ionides, ora al British Museum, in un’immagine di eccezionale cristallina purezza, incisa probabilmente da Solon (fig. 11). In una corniola già nella collezione Medici, ora a Napoli, si è voluta ravvisare l’immagine di Ottaviano/Augusto assimilato a Sol (fig. 12). Il personaggio, che regge una fiaccola nella mano sinistra, guida con un movimento impetuoso una scattante quadriga verso l’empireo, al di sopra di Oceano e Teti. Infine, in una sardonica di Vienna, è simile a Giove, nudo con corona sul capo, egida, scettro e fascio di fulmini, con l’aquila al suo lato, e dall’altro un trofeo presso il quale giace un barbaro legato (fig. 13).

Ove si escludano, in virtù della loro circolazione, le monete con l’immagine di Ottaviano/ Terminus (figg. 7-8), nessuno di questi eccezionali documenti si scosta da un sistema elogiativo che ha nei testi panegirici dell’epoca, di ascendenza culturale greca, un preciso raffronto. Entro quest’iniziale indeterminatezza, in un momento in cui, al fulgore del suo potere militare, Ottaviano sembrava poter dominare la situazione politica e permettersi di proporre a Roma stessa, ancor vivente, una sorta di divinizzazione seguendo le mosse del padre adottivo, Giulio Cesare, si potrebbe interpretare la presenza di una sua statua acrolitica colossale di circa 11 m – la testa con il collo raggiunge l’altezza di m 1,50 –, proveniente, sembra, dall’Aventino (fig. 14). Poiché raffigura Ottaviano secondo il tipo eroico La Alcudia, che restò in vigore non oltre i primi anni dopo il trionfo del 29 a.C., l’acrolito deve essere stato eretto in una fase precoce, comunque prima della diffusione del tipo Prima Porta, la cui pacata compostezza meglio si addiceva alla costruzione di un’immagine semidivina: infatti, quasi tutti ritratti colossali di Augusto finora noti appartengono al tipo Prima Porta. Un acrolito di un personaggio ancora in vita nella Roma della prima età imperiale non doveva essere usuale. La colossalità è infatti sintomo di una parvenza simile a quella degli dei. La statua poteva essere nel tempio di Iuppiter Libertas, ricostruito o restaurato da Ottaviano per aver ripristinato – almeno formalmente – la libertà del popolo romano dopo decenni di vere e mascherate dittature. Si tratterebbe, perciò, della prima documentazione, a Roma stessa, dell’associazione del principe al culto di un dio dell’Olimpo.

Ma l’iniziale tendenza di Ottaviano per forme più palesi di divinizzazione si manifesta con tutta la sua evidenza visiva nel ruolo ricoperto dal mausoleo che aveva iniziato a costruire negli anni posteriori a Naulochos nelle immediate vicinanze del Tevere, nel Campo Marzio settentrionale, e nel suo rapporto con il Pantheon. Il monumento funerario, a carattere dinastico, era collocato a immediato ridosso di quel settore della città che lui stesso e il fidato Agrippa avrebbero ristrutturato nel decennio dopo Azio al punto da trasformarlo, a dire di Strabone, in uno dei parchi più belli del mondo. Con il suo diametro di circa 90 m, contava tra i più grandi edifici funerari del mondo antico. A tumulo erano le tombe degli eroi ed anche, forse, il Sema di Alessandro Magno, secondo la tradizione macedone ora meglio nota attraverso i trovamenti delle tombe di Verghina.

Non può essere dovuto al caso che il Pantheon di Agrippa, dedicato il 27 o il 25 a.C. alle principali divinità olimpiche, cui erano affiancati Romolo/Quirino e il divo Giulio, e collocato a fianco ai Saepta verosimilmente nel luogo stesso dove Romolo, secondo la tradizione, era asceso al cielo divenendo dio con il nome di Quirino, fosse stato costruito fin dall’origine – come hanno dimostrato recenti indagini di scavo – in asse con il mausoleo di Augusto, di modo che le due porte d’ingresso fossero l’una di fronte all’altra (fig. 15). È anzi verosimile che fin dall’origine un percorso rettilineo, rimasto intatto a lungo, collegasse i due monumenti. Agrippa avrebbe voluto inserire la statua di Augusto direttamente nella cella del tempio, ma il principe rifiutò, permettendo solo la collocazione delle due statue, sua e dello stesso Agrippa, nel pronao. L’episodio, avvenuto quando Ottaviano aveva assunto ormai il nome Augusto, rivela tra le righe il fine ultimo del Pantheon che, nelle intenzioni iniziali rivelate dal suo stretto rapporto con il mausoleo, doveva prevedere l’ampliamento del culto a Ottaviano ed alla sua dinastia, così come il mausoleo era destinato ad accogliere le spoglie del principe e dei membri della sua famiglia. Probabilmente questa era anche la funzione di molti Pantheia e Dodekathea diffusi in ambiente greco: il tentativo di affiancare al culto delle principali divinità olimpiche quello della dinastia regnante, come nel caso del Grande Altare di Pergamo, destinato, secondo una possibile lettura dei documenti superstiti, al culto dei Dodici Dei e dei principi Attalidi. Il progetto, certamente avviato prima del 27 a.C., fu virato, negli anni seguenti, verso una soluzione più morbida, in attesa dell’inevitabile consecratio post mortem. A parziale conferma di questa funzione del Pantheon, nei Larari l’immagine dei Dodici Dei fu molto spesso affiancata a quella del genio di Augusto (fig. 16), in una sorta di coinvolgimento che ribadiva la qualità divina del nume che ispirava le azioni del principe e che lo poneva già quasi al rango delle divinità olimpiche.

La decisione di Augusto apparve saggia, ma procrastinava solamente i tempi della sua consecratio. Egli era già destinato come Romolo ad ascendere agli astri ed a prendere il posto che gli spettava di diritto entro la cella del Pantheon. La prodigiosa apparizione di un’aquila scesa, poche settimane prima della morte di Augusto, sopra la lettera A del nome di Agrippa su un tempio collocato nelle vicinanze dell’ ara Martis, dove il principe, insieme con Tiberio, era in procinto di chiudere i riti connessi con il censimento, fu interpretata sia come annuncio della sua morte imminente, sia della conseguente ascensio ad astra. Il tempio non può essere altro che il Pantheon. Parlano in suo favore la vicinanza con la sede dell’ara Martis, collocata non lontano dai Saepta, la dedica di Agrippa, conservata anche nel rifacimento adrianeo, la presenza nella decorazione frontonale di un’aquila entro una corona, e principalmente la sua ubicazione nel luogo simbolico che già aveva visto svolgersi, in un lontano passato, l’apoteosi di Romolo/Quirino.

Il traguardo finale di questa, come di molte altre operazioni, era di legittimare il nuovo regime con forme di omaggio a carattere religioso che innalzassero il principe al di sopra di tutti i mortali. Augusto nel suo tentativo di procedere ad una rivoluzione costituzionale dando tuttavia l’impressione di ripristinare la tradizionale res publica, aveva compreso che il consolidamento della sua costruzione politica e il passaggio indolore del potere ai suoi discendenti esigevano a priori la sacralità divina della persona del principe, per offrire al nuovo regime il necessario supporto simbolico e ideologico.

Nell’arco degli anni 20 del I secolo a.C., Augusto propose il ripristino delle antiche forme religiose come antidoto al crollo di tutti gli ideali durante le guerre civili: un tracollo che aveva condotto all’abbandono e alla rovina della maggioranza dei santuari ancestrali. Restaurando i templi e ripristinando riti ormai desueti, egli si costruiva un’immagine veneranda e inviolabile; tuttavia molti degli edifici sacri ebbero il loro dies natalis mutato al 23 settembre, compleanno del principe che, così, era celebrato, anche in questo caso, insieme con le divinità olimpiche. Al suo ritorno dalla Siria nel 19 a.C., quasi da trionfatore per l’astuta acquisizione delle insegne romane perdute da Crasso e ottenute dai Parti non con una campagna bellica ma con un accordo pacifico, accettò invece che fosse dedicata un’ara alla Fortuna Redux sulla via Appia, dove prendeva avvio la transvectio equitum, a memoria imperitura del suo ingresso a Roma, e che il sacrificio e le celebrazioni festive connesse con la sua inaugurazione, il 12 ottobre, fossero chiamati Augustalia e non Fortunalia. Sebbene solamente a partire dal 14 d.C. si celebrassero veri e propri ludi con il nome Augustalia, l’omaggio collocava de facto Augusto al rango degli dei, non solo perché si sacrificava, tramite l’interposizione di una personificazione divina, a memoria imperitura del ritorno del principe dalla Siria, ma anche perché mai prima di allora un giorno dell’anno era stato attribuito a un mortale ancora vivente. Al suo ritorno dall’Occidente nel 13 a.C. gli fu dedicata l’ara Pacis Augustae, collocata sulla via Flaminia, da dove era entrato a Roma, a poca distanza dal suo mausoleo e dal Pantheon, in un’area, quella del Campo Marzio settentrionale, che simbolicamente parlava solo di Augusto e delle sue imprese. Il giorno della dedica, il 30 gennaio, chiusura del mese di Giano, si celebravano supplicationes per l’imperium di Augusto, custode dell’impero romano. Questi due altari, come le posteriori arae Providentiae e numinis Augusti, erano dedicati a concetti astratti divinizzati, ma Augusto era ad essi associato attraverso le festività congiunte, attraverso i luoghi della loro collocazione, e naturalmente attraverso l’aggiunta ai loro nomi del cognomen del principe con tutta la sua eccezionale pregnanza simbolica. Augusto perciò beneficiava da vivo del privilegio di un’associazione, che esprimeva compiutamente la qualità delle sue azioni capaci di renderlo già da vivo simile a un dio.

È possibile che già all’inizio degli anni 20 del I secolo a.C., avesse preso avvio lo spontaneo inserimento, a carattere non centralizzato né controllato dallo stato, del genius di Ottaviano – e qualche tempo dopo, del genius di Augusto – tra i Lari familiari, garanti della continuità del nucleo familiare, come omaggio dei Romani e degli Italici verso il loro protettore, quasi come riflesso di quel vincolo che legava i clientes con il loro patronus. Così almeno si potrebbe evincere dal testo di Cassio Dione (LI 19), che ricorda, tra le onorificenze offerte ad Ottaviano a seguito della vittoria alessandrina, libazioni alla sua salute durante i banchetti pubblici e privati. La critica è concorde nel supporre che le libazioni fossero offerte non direttamente al principe, ma al suo genius, come già era avvenuto nel caso di Gaio Mario, celebrato in molte case italiche con libazioni, come terzo fondatore della città dopo la sua vittoria sui Cimbri e sui Teutoni, o nel caso di M. Mario Gratidiano, celebrato dalla plebe nei vici con statue cui erano offerti incenso e vino. È probabile che nella realtà quotidiana dei piccoli sacrifici nelle case private la distinzione tra l’uomo e il suo genio avesse scarso significato. La celeberrima Ode IV 5 di Orazio, che prelude al ritorno di Augusto a Roma nel 13 a.C. – ritorno che, nella più perfetta tradizione greca, significa la ricomparsa, nella città troppo a lungo privata della sua guida, della felicità, della prosperità e della pace –, offre un quadro assai preciso dei modi in cui il principe è ormai universalmente venerato nelle mense private dagli uomini che già lo chiamano dio (almeno in poesia non attraverso l’intermediazione del suo genio), che versano vino dalle coppe con molte preghiere, che infine uniscono il suo numen a quello dei propri Lari.

Non va comunque sottovalutata la base giuridica di tali offerte, in quanto erano la premessa per la trasformazione di un culto privato, e personale, in un culto pubblico, fosse esso destinato, appunto, al principe vivente oppure al suo genio, come effettivamente avvenne poco tempo dopo. Un decreto del consiglio municipale di Forum Clodii del 18 d.C., ad esempio, adattando al principato di Tiberio norme già stabilite per Augusto vivente, prescriveva libazioni ai genii di Augusto e di Tiberio prima dei banchetti pubblici in occasione del loro compleanno. Poco dopo la morte di Lepido nel 13 a.C., ma prima che il principe rivestisse finalmente la tanto agognata carica di pontifex maximus, fu probabilmente deciso che il genio di Augusto fosse inserito tra le divinità testimoni dei patti e dei giuramenti. Era già abitudine giurare negli atti privati in nome del genio del pater familias, ma ora il giuramento al genio di colui che reggeva l’impero assumeva una valenza ufficiale. Nello spazio fino allora occupato solo dagli dei della religione romana si veniva ad aprire una ulteriore breccia.

Nel 12 a.C., una volta divenuto pontifex maximus, Augusto poté procedere alla mossa seguente, di organizzare il culto capillare del suo genio, ripristinando l’antico culto pubblico dei Lari Compitali, divinità protettrici del territorio urbano, celebrate lungo le strade o nei crocicchi. Il culto ufficiale era stato soppresso negli anni 60 del I secolo a.C. per la potenziale minaccia di rivolte popolari. Ebbene Augusto riplasmò anche questo culto tradizionale trasformando i pericolosi Lares Compitales in pacifici Lares Augusti. Seguendo un disegno che fu definitivamente compiuto nel 7 a.C., con la suddivisione della città in 14 regioni e 265 vici, ma avviato qualche anno prima, poiché il Larario del vicus di Iuppiter Fagutal è datato nel 12 a.C., e il Larario del vicus di Honos et Virtus nel 9 a.C., ad ogni crocicchio fu eretto un piccolo santuario dedicato ai Lares Augusti, raffigurati come giovani danzanti con cornucopia in mano. Ad essi, solitamente due, fu aggiunto il culto del genio di Augusto, raffigurato di solito in toga pretesta, a capo coperto, con una patera nella mano destra in procinto di libare, o con il lituo, alla maniera della statua di culto del divo Cesare come sulle monete che raffigurano il suo tempio nel foro Romano, e talvolta con una cornucopia o una acerra nella mano sinistra.

Così il genio di Augusto cominciò a ricevere un culto pubblico, perché pubbliche erano le feste destinate ai Lari Compitali, dette Compitalia. Anche i sacrifici a lui dedicati salirono di peso. Se fino allora al suo genio erano offerti sacrifici incruenti, a partire dal 12 a.C. gli fu sacrificato un toro, alla pari con alcuni tra gli dei più importanti del pantheon romano, tra cui Giove e Marte, mentre ai Lari si sacrificava un porco.

Il culto dei Lari e del genio di Augusto non si arrestò a Roma, né fu circoscritto all’ambiente degli schiavi e dei liberti, ma si diffuse nelle città italiche dove già da tempo erano state impostate forme non omogenee di celebrazione del principe, come confermano non solo le parole di Appiano, ma anche documenti epigrafici e resti monumentali. Numerose iscrizioni attestano la presenza di templa, edifici sacri, sacerdozi e feste dedicati al genio di Augusto ed ai Lari. Importante, in tal senso, è anche il c.d. tempio di Vespasiano nel foro di Pompei, in realtà dedicato dalla sacerdos publica Mamia al genio di Augusto ed ai Lari Augusti. Uno dei rilievi della casa di Cecilio Giocondo con raffigurazione del terremoto del 5 febbraio 62 d.C. mostra il lato est del foro pompeiano al momento culminante della scossa sismica, mentre era in atto un sacrificio di un toro per il genio di Augusto e di un maiale per i Lari (fig. 17), forse in occasione dell’anniversario dell’offerta ad Augusto del titolo di pater patriae nel 2 a.C. Ma si può ricordare anche l’iscrizione metrica dall’anfiteatro di Acerrae che, nella traduzione di Cesare Letta, suona: “Questo tempio è consacrato agli Eroi (cioè ai Lari). Il nome di Augusto che essi portano (scil. i Lari) possa felicemente rimanere ai figli (scil. Gaio e Lucio Cesari), perché il padre si rallegri della crescita della propria stirpe”. L’iscrizione, naturalmente anteriore al 2 d.C., anno della morte di Lucio, attesta, al pari del sacello che Mamia aveva dedicato nel foro di Pompei al genio di Augusto e ai Lari, la presenza precoce del culto del genio al di fuori dei limiti della cinta urbana.

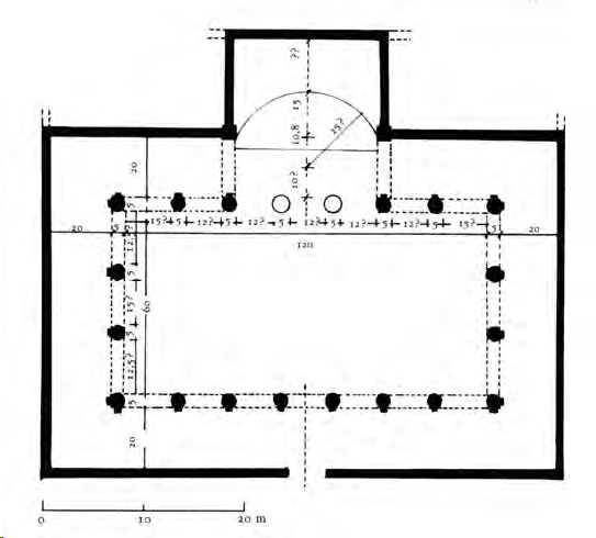
Se tuttavia, come afferma Appiano, già a partire dal 36 a.C. Ottaviano era celebrato in Italia con culti divini, vuol dire che esistevano fuori di Roma differenti soluzioni, equiparabili o alternative al culto del genio, che permettevano di onorarlo come dio vivente: ma quali fossero specificamente, al di là della più comune associazione al culto di una delle divinità locali, non è dato saperlo con assoluta precisione. È solo possibile sostenere che, quando Vitruvio ha scritto il suo trattato, non oltre il 23 a.C. ca., alle basiliche era talora annessa una aedes Augusti, uno spazio di varia misura talora absidato, che poteva fungere da curia, o da sede per attività giuridiche o per riunioni ufficiali, e/o destinato nello stesso tempo a celebrare il principe. È possibile che la presenza imperiale rappresentata simbolicamente da una sua statua-ritratto volesse inizialmente garantire, nella logica clientelare così fortemente radicata nella mentalità romana ed italica, la fedeltà nei confronti del patronus, che non era più uno degli esponenti delle principali famiglie al potere, né un magistrato locale, ma il principe egemone. Forse, già prima del 13 a.C. era invalso in Italia l’uso di giurare in nome di Ottaviano/Augusto. Nell’affiancare alla sua statua quella di altre divinità, poi dei membri della sua famiglia, si potrebbe riconoscere un’evoluzione della formula di giuramento, sulla quale purtroppo i programmi figurativi finora ricostruiti – di solito databili ad epoche posteriori, o comunque ampiamente rielaborati in funzione dinastica – non offrono risposte sicure. Vani simili alla vitruviana aedes Augusti, o edicole con alto podio, erano annessi alle basiliche già a partire dalla fine del II secolo a.C., ad esempio nella basilica di Cosa e in quella di Pompei. Destinati forse alla commemorazione delle più eminenti personalità cittadine benemerite per le loro azioni, era inevitabile che, con l’avvento del principato, il loro assetto ne subisse una radicale trasformazione, con la presenza dominante della statua imperiale cui le statue dei magistrati locali si affiancarono in posizione subordinata, ma in modo da riceverne lustro di riflesso. Basiliche e aedes, dette anche Augustea o Caesarea, diventarono in breve tempo i luoghi nei quali era consueta la presenza dell’immagine dell’imperatore e dei membri della sua famiglia. Oltre la basilica di Fano, che è il modello su cui si basa la descrizione di Vitruvio (fig. 18), esempi significativi del sistema basilica / aedes Augusti sono presenti a Lucus Feroniae (fig. 3) – il cui assetto scultoreo, sulla base del rinvenimento della testa di Ottaviano di piena età triumvirale (fig. 4), forse inserita in una statua loricata, e di due statue tardorepubblicane di magistrati locali, una delle quali con una testa affine all’Agrippa, potrebbe persino risalire ad un momento anteriore al 27 a.C. –, a Iuvanum, a Ordona, a Saepinum e, fuori d’Italia, a Tarragona, a Conimbriga ed a Sabratha.

Vani molto spesso absidati ed eretti nelle immediate vicinanze del foro, potevano non essere collegati direttamente con le basiliche. Erano destinati alle riunioni di associazioni, non esclusivamente religiose, che qui svolgevano i loro uffici, libando durante i banchetti, e dichiarando così la loro lealtà nei confronti del principe. A Tivoli, affacciata sul foro, è stata rinvenuta una di queste sale absidate, dedicata da M. Varenus Diphilus, liberto già schiavo del potente propraetor Marcus Lartidius e di sua moglie Varena, e magister Herculaneus, membro cioè del collegio sacerdotale preposto al culto di Hercules Victor, il più importante santuario extraurbano dell’antica Tibur. Allo stesso personaggio si deve la costruzione, pro salute et reditu di Augusto, di un edificio limitrofo, un ponderarium, contenente i pesi e le misure-campione tarati a norma di legge secondo i prototipi conservati sul Campidoglio a Roma. La dedica, riferibile al ritorno del principe a Roma nel 19 o nel 13 a.C., permette di stabilire un termine abbastanza preciso per la costruzione di ambedue gli edifici. E proprio nell’ambiente absidato, al centro della nicchia, una base reggeva una statua ora acefala di Augusto seduto in sembianza di Giove con un mantello che gli copre i fianchi e la coscia destra (fig. 19): forse il primo esempio noto – e sotto molti aspetti assai precoce – per l’uso di tale iconografia in funzione di Augusto in occidente, sempre che possa confermarsi la contemporaneità tra dedica della sala e statua al suo interno. In età imprecisata i magistri Herculanei furono addetti anche al culto dell’imperatore, divenendo così magistri Herculanei Augustales. Forse questo ambiente, nel quale è possibile che i magistri si incontrassero in determinate occasioni nel centro di Tibur, piuttosto che nel ben più distante santuario di Hercules Victor, documenta che nel penultimo decennio del I secolo a.C. ai magistri fosse già stato attribuito dal senato locale tale ruolo, sebbene non ancora stabilizzato con la nuova titolatura, oppure che essi lo svolgessero ancora a livello privato, indipendentemente da un’assegnazione ufficiale. L’iconografia iovia non intende affatto identificare il principe con il padre degli dei, ma imporre l’equivalenza tra i due poteri, divino e terreno, mantenuti con lo stesso rigore ed equilibrio. Riprendendo motivi di età ellenistica, Augusto è analogamente assimilato a Giove, ma con la ben più impegnativa egida sulle spalle, nel Cammeo Strozzi al British Museum (della bottega di Dioskurides?) (fig. 20) e nell’onice Marlborough a New York (del figlio Eutyches?) (fig. 21), che anticipano la complessa simbologia della Gemma Augustea.

Nell’8 a.C., con decreto del senato, il nome del mese Sextilis mutò in Augustus: e fu un ulteriore importante passo verso l’impostazione di onori quasi divini. Ormai Augusto era il padre e il tutore di tutti gli uomini, pronto a diventare, come effettivamente avvenne nel 2 a.C., più o meno all’unisono con il completamento e la dedica del foro di Augusto, pater patriae, assumendo il ruolo simbolico, come ha giustamente osservato Pierre Gros, di pater familias non più solo dei Romani, ma di tutti i cittadini romani dell’impero. Le statue dei re di Alba e dei summi viri componevano una sorta di galleria degli antenati nel larario personale di Augusto, quasi che il foro fosse la sua domus. In una magnifica sala del foro, collocata al fondo del portico nord-occidentale, era situata una statua colossale, alta circa undici metri (fig. 22). L’aula, interamente rivestita di marmo, aveva sulla parete posteriore un elegante tendaggio dipinto su lastre di marmo, mentre le pareti laterali avevano incassi entro i quali dovevano essere applicate tavole dipinte con ante di protezione. Per quanto si voglia essere scettici, è questo il luogo più plausibile nel quale erano ricoverate due famose tavole di Apelle raffiguranti l’una Alessandro in trionfo, incoronato da una Nike e con i Dioscuri ai suoi lati, e l’altra l’immagine del furor bellico, con le mani legate, presso Alessandro trionfante su carro. I due dipinti, cui Claudio fece ridipingere il volto di Alessandro con le fattezze di Augusto, erano in fori sui (scil. di Augusto) in celeberrimis partibus: e come sembrerebbe precisare Servio in maniera poco chiara, entrando nel foro, a sinistra. Della statua colossale che, realizzata in tecnica acrolitica, era stante e agganciata alla parete di fondo, sono conservati alcuni frammenti della mano destra, che reggeva un oggetto a sezione circolare, il dorso della mano sinistra e parte di uno dei polsi: troppo poco per definire l’iconografia della statua che, solo per ipotesi, si può supporre che reggesse un rotulo o un lituo. Data la collocazione dell’aula sul fondo del porticato che, in base ad uno degli atti vadimoniali rinvenuti ad Ercolano, potrebbe essere identificato con la porticus Iulia, e che, come l’altro porticato sud-orientale e, forse, le ampie esedre annesse, aveva funzione di basilica per le attività dei pretori urbano e peregrino (fig. 23), appare probabile che essa svolgesse una funzione analoga a quella delle aedes Augusti nelle basiliche italiche e provinciali, e che quindi fosse destinata alla collocazione di una statua di Augusto, o meglio, del genio di Augusto.

Anche se non totalmente condivisa a favore di una recente, ed a mio parere inaccettabile ipotesi che si tratti di un’immagine del divo Cesare in posizione privilegiata rispetto ai summi viri, reputo che la presenza di una statua colossale di Augusto, o meglio del suo genio, potrebbe poggiare su una serie di dati non privi di una forte valenza simbolica. Nell’aula, in primo luogo, erano i dipinti di Apelle, il cui riferimento ad Augusto – accentuato dal rifacimento dei volti di Alessandro – mi sembra molto più vincolante rispetto a Cesare. Durante il I secolo d.C., poi, il foro era uno dei luoghi deputati per il sacrificio di un toro al genio dell’imperatore vivente, in occasione di un felice evento tra i quali il suo ritorno a Roma dopo un viaggio, o il fausto svolgimento di una campagna bellica, fosse o meno coronata da un trionfo. Almeno un importante monumento conferma il dettato degli acta. I rilievi della c.d. ara Pietatis sono pertinenti appunto ad un recinto d’altare dedicato a Claudio in occasione del suo ritorno dalla Britannia, celebrato con un trionfo nel 44 a.C. Su una delle lastre è rappresentato il sacrificio di un toro davanti al tempio di Marte Ultore (fig. 24), mentre sul frammento di un’altra lastra, nell’ambito di una processione, emerge in primo piano l’immagine di un giovane che regge una statuetta di Lare.

Ma il tempio di Marte Ultore era anche il luogo nel quale si assegnavano ai magistrati le provincie, e dal quale essi partivano per la loro nuova sede. Sempre nel tempio, probabilmente, si discuteva sui difficili rapporti con le popolazioni ai bordi dell’impero e con gli stati vassalli. Svetonio ricorda, infatti, che imperatore e senato ricevevano nel tempio le ambasciate straniere e i principi barbari che avevano dichiarato di voler restare in fide e in pace con i Romani. Proprio negli anni intorno al 2 a.C. Augusto riprendeva la politica di scontro contro i Parti, affidandone la direzione militare al nipote Gaio Cesare. Non sappiamo dove fosse avvenuta l’assegnazione, ma è verosimile che il foro di Augusto avesse offerto le condizioni più idonee, sotto il profilo ideologico, per l’assegnazione dell’incarico. D’altronde, una delle tavole di Apelle nell’Aula del Colosso, raffigurante Alessandro tra i Dioscuri, avrebbe potuto avere un riferimento simbolico alla posizione dei due principi, Gaio e Lucio, ormai definitivamente proclamati eredi di Augusto e suoi potenziali successori.

Quando nel 54 d.C., a seguito della ripresa delle campagne belliche contro i Parti, Nerone affidò con le insegne reali l’Armenia minore ad Aristobulo e la regione di Sofene a Soemo, e inoltre prepose al governo dell’Armenia il grande generale Domizio Corbulone, il senato dedicò nel tempio di Marte Ultore una statua all’imperatore, collocata a fianco delle statue di culto, e di pari misura, forse proprio a causa di questa specifica funzione del tempio di Marte Ultore. Si è voluto riconoscere questa statua, non senza qualche obiezione più o meno fondata, su un rilievo da Cartagine, ora ad Algeri, nel quale un personaggio maschile, in veste eroica con stella sul capo, è raffigurato a fianco di Venere e di Marte Ultore (fig. 25); c’è una non remota possibilità che il giovane imperatore fosse raffigurato nelle sembianze del suo genio.

Il rapporto tra il genio dell’imperatore e il foro di Augusto traspare anche da un altro nesso simbolico, un comune denominatore basato sulla data del 1° agosto. I magistri vici, depositari del culto presso gli altari compitali, assumevano l’incarico il 1° agosto, il mese già chiamato Sextilis, e dall’8 a.C. Augustus, più o meno all’unisono con la riorganizzazione della città e con l’istituzione del culto dei Lari Compitali e del genio di Augusto. Nel medesimo mese Ottaviano aveva inaugurato il suo primo consolato, aveva celebrato tre trionfi , aveva condotto dal Gianicolo le legioni che avevano seguito fedelmente la sua causa, aveva ridotto l’Egitto a provincia romana, aveva concluso le guerre civili. Inserito nel calendario romano come giornata festiva, il 1° agosto, giorno dell’ingresso vittorioso di Ottaviano ad Alessandria, era considerato come l’inizio del suo potere. Forse proprio per questi motivi il 1° agosto fu scelto non solo per la dedica dell’altare di Augusto a Lugdunum, ma anche, probabilmente, per il dies natalis del tempio di Marte Ultore, sempre che faccia fede il testo di Cassio Dione e non i Fasti di Ovidio che, al contrario, pongono il compleanno del tempio il 12 maggio, datazione privilegiata da Géza Alföldy nella sua impegnativa integrazione dell’iscrizione dedicatoria collocata sull’architrave dell’edificio. La duplice tradizione potrebbe essere nata dal fatto che le gare equestri note come ludi Martiales si svolgessero il 12 maggio e il 1° agosto. Comunque sia – e c’è anche la possibilità che una delle due datazioni possa riferirsi al dies natalis del tempietto di Marte Ultore sul Campidoglio –, il collegamento tra il foro di Augusto, il primo giorno del mese dedicato al principe e il culto del genio imperiale, mi sembra che poggi su basi indiscutibili, rafforzate in seguito dalla nascita di Claudio proprio il 1° agosto.

Attraverso l’associazione al suo genio e a concetti astratti divinizzati; attraverso le numerose feste celebrate in suo onore; attraverso la modifica del dies natalis di molti templi, tra i fondamentali, con lo spostamento al 23 settembre, giorno della sua nascita; attraverso il suo nome prestigioso e ricco di valenze religiose; attraverso il suo cognomen dato ad un mese dell’anno, privilegio offerto fino allora solo agli dei, Augusto occupava pian piano buona parte degli spazi religiosi della città e dei tempi del calendario dedicati alle celebrazioni sacre. Fu una costruzione sapiente e geniale, che ha il suo traguardo nelle celebrazioni del suo funerale e della sua apoteosi e che, a livello figurativo, ha le sue espressioni più compiute in alcuni cammei risalenti alle ultime fasi del suo principato. In una sardonica fiorentina con il purissimo, come decantato, profilo del principe con acconciatura apollinea della chioma ricadente a riccioli sulle spalle (fig. 26), è Apollo a mostrare, forse per l’ultima volta, i tratti facciali di Augusto, secondo quelle formule iconografiche che rendevano già in antico difficile distinguere il principe dal dio in una statua posta nella biblioteca del tempio di Apollo sul Palatino. Ma il quadro più compiuto, databile negli anni immediatamente precedenti la morte di Augusto, è offerto dalla Gemma Augustea di Vienna (fig. 27), nel cui impianto cosmologico Augusto si identifica con Giove, pur preservando il suo attributo specifico, il lituo, in luogo del fascio di fulmini. La composizione non dà adito ad equivoci. Augusto e la dea Roma dominano su un trono comune al centro della fascia superiore, con i piedi poggiati su un cumulo di armi. Un’aquila resta vigile sotto il trono. Il Tempo e la personificazione del mondo abitato pongono sul capo di Augusto una corona. La Terra sdraiata, con la cornucopia e due fanciulli al suo fianco – i frutti da essa prodotti –, poggia pensosa il braccio sul trono. Dall’altro lato Tiberio scende trionfatore da una quadriga retta da una Vittoria. Al lato del carro è Germanico, speranza futura dell’impero, in corazza. Alle spalle di Roma ed Augusto appare la costellazione del Capricorno, il segno che vede la nascita del sole, del nuovo anno e, per traslato, l’avvento di una nuova età dell’oro; il segno sotto il quale Augusto era stato generato per il bene comune dei Romani. Sebbene la splendida sardonica debba essere stata eseguita in occasione del trionfo di Tiberio, festeggiato il 10 d.C., la composizione celebra Augusto. Nulla sarebbe stato possibile, sembrano dire le immagini, non le vittorie di Tiberio e di Germanico, non il trionfo di Tiberio, senza il principe, motore immobile da cui tutto si diparte. Così, tutti guardano verso il principe già assurto nell’Olimpo al rango degli dei, e non verso il trionfatore.

Il programma religioso così sapientemente impostato dal principe avrebbe regolato la vita ufficiale dell’impero e degli imperatori nei secoli a venire, fino all’avvento del cristianesimo.


Figure

1.

Afrodisia, Museo. Rilievo dal Sebasteion: Augusto signore assoluto e pacificatore.

2.

Olimpia, Museo. Torso della statua di Augusto, dal Metroon. A fianco, disegno ricostruttivo.

3.

Pianta della basilica di Lucus Feroniae.

4.

Roma, Museo di Villa Giulia. Ritratto di Ottaviano, dal vano absidato nella basilica di Lucus Feroniae.

5.

Denario di Ottaviano, anteriore al 31 a.C. Ottaviano vincitore con scettro, aplustre e piede su globo celeste.

6.

Denario di Sesto Pompeo, coniato in Sicilia tra il 42 e il 40 a.C. Pompeo Magno vincitore, con aplustre e piede sulla prua di una nave, tra i Fratelli Catanesi.

7.

Denario di Ottaviano, anteriore al 31 a.C. Recto: effigie di Ottaviano. Verso: erma di Terminus.

8.

Denario di Ottaviano, anteriore al 31 a.C. Recto: erma di Ottaviano come Terminus, con corona di alloro.

9.

Vienna, Kunsthistorisches Museum. Agata chiazzata: Ottaviano come Nettuno su carro tirato da tritoni.

10.

Boston, Museum of Fine Arts. Sardonica, attribuita a Solon. Ottaviano come Nettuno su quadriga di cavalli marini.

11.

Londra, British Museum. Sardonica, attribuita a Solon. Ottaviano come Mercurio (dal calco).

12.

Napoli, Museo Archeologico Nazionale. Corniola. Ottaviano come Sol su quadriga.

13.

Vienna, Kunsthistorisches Museum. Sardonica: Ottaviano come Giove (dal calco).

14.

Città del Vaticano, Musei, Cortile della Pigna. Ritratto colossale di Ottaviano del tipo “La Alcudia”.

15.

Pianta del Campo Marzio settentrionale. La freccia indica la connessione tra mausoleo di Augusto e Pantheon.

16.

Pompei, Larario dipinto sulla facciata della casa Regio IX, 11 (dall’acquerello).

17.

Rilievo dal larario della casa di Cecilio Giocondo: scena del terremoto del 62 d.C. nell’area del foro.

18.

Pianta della basilica di Fano, ricostruita in base alla descrizione di Vitruvio.

19.

Tivoli. Statua acefala di Augusto, nell’aula absidata presso il foro, dedicata da Marcus Varenus Diphilus.

20.

Londra, British Museum. Sardonica, c.d. Cammeo Strozzi, attribuita a Dioskurides: ritratto di Augusto con benda sul capo ed egida sulle spalle.

21.

New York, Metropolitan Museum. Onice bianco su fondo bruno, attribuito a Eutyches: busto di Augusto con egida sulle spalle.

22.

Disegno ricostruttivo dell’Aula Absidata nel foro di Augusto (Studio InkLink).

23.

Pianta aggiornata del foro di Augusto (M.L. Vitali e N. Russo).

24.

Roma, Villa Medici. Rilievo dall’ara reditus Claudii, con rappresentazione del sacrificio di un toro presso il tempio di Marte Ultore (dal calco a Roma, Museo della Civiltà Romana).

25.

Algeri, Museo Archeologico. Rilievo da Cartagine. Venere, Marte Ultore e il genio di Nerone.

26.

Firenze, Museo Archeologico. Sardonica: profilo di Augusto come Apollo.

27.

Vienna, Kunsthistorisches Museum. La c.d. Gemma Augustea.



Ultima modifica 2020.01.17